Our Services
As a successful company in the façade industry, we have a proven track record of delivering accurate and affordable take-off services to engineers, architects, general contractors, and sub-contractors alike. Our team of experts uses cutting-edge technology and industry-leading software to provide precise material take-offs that can help you streamline your budgeting and procurement processes. Whether you’re working on a small-scale renovation or a large commercial project, we are your one-stop solution for all your façade material quantity take-off requirements.
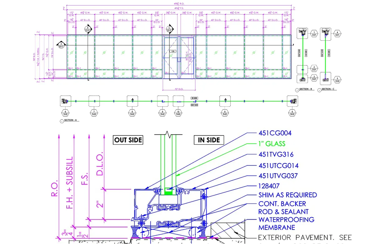
Facade Shop drawings are a critical set of detailed drawings for all prefabricated façade components in a building project. They provide a comprehensive explanation of the façade as intended by the architect and are more detailed compared to architectural drawings. Our Façade 2D Drafting services encompass Architectural CAD drafting and detailing for the entire Façade, including Window, Window Wall, Curtain Walls, Storefront, Doors, Composite panel cladding, and Canopies. Our dedicated and specialized Facade team is led by a senior project manager and comprises senior draftsmen. We adhere to consistent standards for all projects from a specific client to ensure the highest quality and drawing consistency. Our focus is on delivering cost-effective façade drafting & detailing services with a quick turnaround time.
Facade Services offers engineering and consultancy services to support builders, contractors, and installers with value engineering experience, working on high-rise towers, residential & commercial buildings. We provide all the structural calculations needed for various façade applications, such as curtain walls, steel structures, cladding systems, rain screens, railings, etc. The design of the facade requires an advanced methodology, necessitating specialized structural engineers & designers with good experience in the field of facades. Our designs always adhere to International Building Codes, primarily for safety and legal concerns. We are familiar with all major facade standards.


